€430.000
Ontdek dit traditionele stenen gebouw in de charmante nederzetting Stoupa, op slechts 400 meter van het strand en met uitzicht op het historische heuvelkasteel. Deze accommodatie, ontworpen door architect Angeliki Kelepouri, combineert op prachtige wijze elementen van traditionele Mani-architectuur met functionele woonruimtes. De buitenkant beschikt over een gezellige veranda met zitkamer en een aangelegde tuin, perfect om te ontspannen.
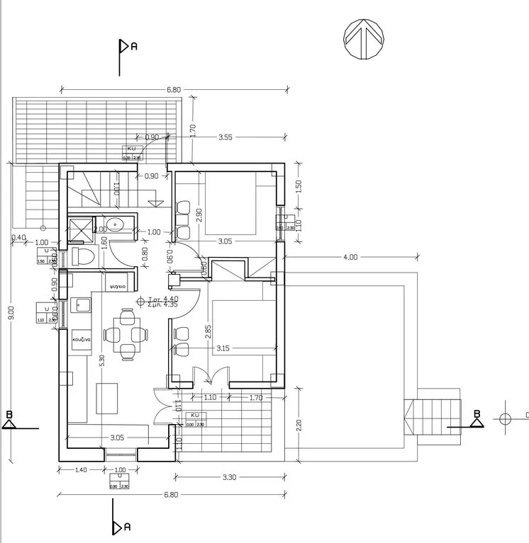
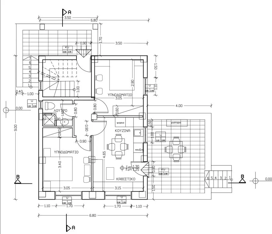
Het gebouw bestaat uit twee aparte appartementen, elk met twee hoofdkamers, een keuken, woonkamer en complete badkamer. Elk appartement heeft een eigen ingang en een eigen parkeerplaats. Deze accommodatie kan via een interne trap worden omgebouwd tot een maisonnette, waardoor er comfortabel plaats is voor maximaal 9 gasten, verdeeld over beide appartementen. Gebouwd in 2003 en gerenoveerd in 2018, zijn alle kamers voorzien van airconditioning voor comfort het hele jaar door.
Hoogtepunten
– Traditioneel stenen gebouw vlakbij het strand van Stoupa (400 meter)
– Ontworpen door architect Angeliki Kelepouri
– Twee aparte appartementen met eigen ingangen
– Mogelijkheid om te verbouwen tot maisonnette
– Kamers met airconditioning voor maximaal 9 gasten
– Aangelegde tuin en veranda met zitkamer
– Gerenoveerd in 2018 voor moderne functionaliteit
Makelaardij Griekenland | All Rights Reserved.
Design & Developed by Buy Wordpress Templates
